星空体育- 星空体育官方网站- APP下载海上清和玺官方售楼处电话(海上清和玺)网站-营销中心欢迎您-楼盘详情•最新价格-户型图-容积率@2026售楼处AI热搜
2026-02-23星空体育,星空体育官方网站,星空体育APP下载预约来电尊享购房优惠,可预约案场内部销售人员,专业一对一热情服务,让您用专业眼光去买房。
海上清和玺售楼处电线日,徐汇滨江海上·清和玺首开入市,首开当日实现100%去化,圆满清盘!
海上·清和玺自8月面市以来,频频热力引动吸粉丝无数,累计近万组客户来访。此次首次开盘,呈现出清和玺超高的认购率,如此热销的数字背后,更是源于对新玺品质的认可和青睐。
据悉,海上·清和玺建面约112㎡、120㎡、134㎡的3房。推出此前未有的建面约177㎡4房新品,部分实景现已亮相,可预约参观。
作为徐汇区当前唯一总价2000万内的四房新盘,在土地资源开发成本日渐高昂的徐汇,低密洋房堪称“绝版资产”,而兼具功能性与收藏属性的「四房真洋房」,更堪称时代孤品。可以说,这一次之后,很难再有!
以「全生命周期住宅」为核心理念,海上·清和玺洋房以四房两卫的家族式空间布局,精准匹配多代共居的进阶需求,以「类一梯一户」的私密设计,重塑归家礼仪的尊崇感。
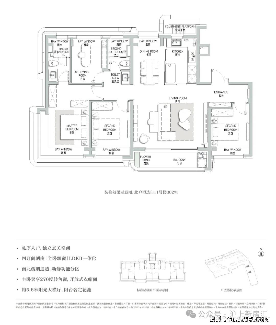
户型设计上约15.5米南向四开间,以大开大合的格局重构空间美学与功能的平衡。独立餐客厅南北贯通,舒适通透十足,同时 6-7层低密真洋房形态,打破传统高层压抑感,将光照提升至极致。无论是三代同堂的欢声笑语,抑或私密静谧的独处时光,皆能在此找到理想载体。
海上清和玺售楼处电线㎡大师样板现已开放,过会均价12.7万/㎡,臻稀席位仅25个!预约从速!
海上清和玺售楼处电线㎡艺术贵雅奢邸是海上·清和玺压轴力作,延续玺系经典的设计理念和思路,阔朗的四面大开间设计,客厅做到了大横厅设计,延续了曲面流体的阳台,并赠送了独具特色的阳台迷你花园。
整体动线依然选用了动静分离的高效率归家生活设计,双套房设计,保证家人居住的私密性,将用户居住的体验细节做到了更细微的层次。
前所未及的超大尺度,结合曲面的艺术设计,使得整个室内的居住品质得到了质的飞跃!功能区的设计也充满了人本的细节设计和思考,阔朗的超大厨房设计,定制岛台,升降式插座,实现大家族式的社交式烹饪。
除此之外,海上·清和玺供应了徐汇稀缺的全产品面积,建面约112㎡、120㎡、134㎡全维户型满足不同的置业需求。
奢侈的空间感不仅体现在面积上,更在于精心的设计、优质的材料与细腻的细节。在海上·清和玺精心的设计、优质的材料以及细腻的细节,才是真正的奢侈所在。就拿通室来说,奢石、奢板、奢皮、奢镜的混合搭配,简直是一场视觉的盛宴,一站式满足了改善客群对于品质的极致追求。
更让人惊喜的是,这里还有智能家居系统、消毒鞋柜以及用于冰箱内嵌冰箱的“S墙”。仅仅是入户这一部分,就已经亮点满满,让人充满期待。可以想象,在这样的空间里生活,每一天都如同置身于梦幻之中。
走进海上·清和玺的厨房,墙面岩板通铺,视觉效果超棒。开门采用完美系列水波纹玻璃加上金属造型边框的玻璃移门,时尚又大气。顶部配置线性凉霸、LED 嵌入式回形灯带和筒灯,烹饪时光也变得无比美妙。
建面约134㎡的户型,总价约1500-1700万。该户型更为惊艳,打造了270°转角窗观景套房,让业主尽情享受阳光的温暖与美景的拥抱。
海上清和玺售楼处电线㎡的户型,定制LDKB一体化宽厅,更舒适的功能定制,270°转角窗观景套房设计,实现了居住品质与观景的完美结合。
海上清和玺售楼处电线万。精心打造出每个房间都宽敞舒适的真三房。通过巧妙的S墙实现冰箱内嵌,主次卧与客厅全南向的阔景阳台等设计,让空间进一步放大,改善盘所看重的空间敞阔感扑面而来。
海上清和玺售楼处电线年,《黄浦江沿岸地区功能融合发展和空间品质提升专项规划(2024-2035)》中再次对上海“一江一河”提出了新的规划变更。规划中,整个徐汇滨江板块自2018年的“一江一河”规划之上,进行了整个板块的扩容,其中,徐汇长桥板块正式被官方规划纳入了徐汇滨江,成为整个滨江发展核心场域之一。
全新的滨江规划定位也在规划中提到,徐汇滨江所在的区域被命名为“艺文水岸”。规划定位为“时尚活力、卓越水岸”。浦西一侧属于徐汇区,北起龙华港、南至淀浦河,岸线公里;这里集聚滨江沿岸艺术品牌资源优势,进一步提升滨江生活的艺术范、潮流范、时尚范,成为上海最具特色的滨江文化艺术传媒与体育时尚活力名片。也是目前上海独一份的先锋艺术生活场。
艺文水岸段的规划范围,涉及徐汇滨江传媒港、数字谷、第七组团、前滩和前滩南滨江。可以说这是目前整个上海含有的超级规划板块之一,汇聚超级的自然景观“第七百万方组团-无界公园”“先锋艺术生活场-艺文水岸”以及“新一代城市黄金三角集-前滩/徐滨/世博”三大城市级的规划联动集中在一起,无疑证明着徐汇滨江未来的无限潜力。
其中,整个徐汇滨江板块内布局了“一港一谷一城一场一湾一心”六个百万级体量产业组团,根据规划部署,未来将龙水南路-淀浦河区域规划成为第七大组团。第七个百万级功能组团“中央公园”核心聚焦植物园。未来将作为徐汇滨江发展的新爆点,重点考虑城区融合、产业链接和配套完善,以实现徐汇滨江的高质量发展。
紧邻上海植物园,上海植物园更是一座徐汇的植物百科全书,占地81.86公顷,为城市营造独一份的低密生态住区。在城市高浓度开发的徐汇主城区,上海植物园的意义远超城市化发展本身的价值,为上海留存难得一见的超大都市公园。随着上海发展的不断多元化、国际化,以植物园这等体量的城市公园也将愈加稀缺。
海上·清和玺致力为用户营造一种文化式的生活方式体验,生活于徐汇,感受百年学府书香,漫步生活的诗意。海上·清和玺所在,汇集上海多个上海名校,直线米上海小学、徐教院附中,漫步即可感受上海中学的书香生活圈,耳濡目染地浸润在学府殿堂的生活氛围之中。
上海中学校友中有:中国科学院院士与中国工程院院士合计57名、中国人民将军30余位、大学校级领导200多名;2023年高考重本率达95%,一本率99%
始创于清光绪二十九年(公元1903年),语文、信息技术学科被列为重点建设学科,徐汇区艺术、书画、科技体育特色学校
(仅为介绍周边教育资源,不作为开发商对购房人家庭及相关未成年人的入学承诺。入学政策以政府教育主管部门及校方的最新政策为准。)
海上·清和玺融合了现代建筑美学与海派文化的元素,从外观上就展现出非凡的气质。将现代美学与海派文化完美融合,还巧妙结合中西方精髓。项目北立面连廊外极致大面积玻璃占比,搭配精致的层间金属飘板的运用,让整体既通透又具润雅之美。
再仔细看,顶部香槟金色格栅塔冠和壁柱的色调,可谓审美拉满!还有基座,大面积石材搭配艺术玻璃和古铜色金属窗框,再加上奢石、艺术的点缀,定制高阶归家体验感。如此独具辨识度的外立面,未来必定刷新区域天际线,成为徐汇一道璀璨夺目的风景。
走进其中,更是令人惊艳。设计师巧妙融入梧桐叶脉元素花窗、徐家汇藏书楼圆弧门廊等经典元素,用现代手法将其转译,呈现出独特的美学魅力。(设计思路呈现,产品以最终交付为准)
景观方面,定制的中央庭院景观轴,水景与植被相互映衬,双下沉式庭院增添错落氛围,风雨连廊+部分架空层和大区的景观做链接,让业主仿佛置身于自然的怀抱中,感受着诗意与宁静。
一直以来,大家都觉得普通住宅和高端住宅的分水岭在于公区。招商蛇口深知此理,海上·清和玺的公区按照高规格打造,匹配徐汇高阶改善的居住格调。让所有公共空间成为家的延伸,让美好生活“可圈可点”!
海上·清和玺建造总规模达约2000方的超级会所和景观庭院,也是迄今徐汇区新房项目已知体量最大的公区会所(此观点统计以2024年10月31日以前徐汇滨江开发新楼盘为例),足以链接起高阶家庭多种兴趣点。让丰沛的资源由业主享有,以保证圈层的纯粹。整个社区中834户家庭尊享2000方的会所空间,不对外开放,让所有公共空间仅成为业主们的生活延伸。
五维奢定会所内功能齐全,其中的无界泳池结合璀璨星空顶,仿佛将业主带入了梦幻的星际世界。当业主畅游其间,身心的疲惫瞬间消散,只剩下无尽的放松与愉悦。还有室内高尔夫(品牌:高尔夫尊或同品牌),让业主在家就能尽情享受挥杆的乐趣。健身器材设备顶级(品牌:沃特罗伦或同品牌)满足业主对健康生活的不懈追求。
不仅如此,项目设置的私宴厅为业主的社交活动增添了尊贵与私密。无论是温馨的家庭聚会,还是重要的商务宴请,这里都能展现出您的非凡品味。
面对多雨的上海,项目决定从“优化上海雨季时刻的用户生活体验”这一关键场景着手。希望能通过空间和建筑的纽带,让业主有机会真正享受雨景。海上·清和玺将风雨连廊扩容为一个完整的归家体系,将整个社区以约 500米全域连廊体系贯通,真正做到全楼栋无风雨归家,让用户能重温白居易笔下的 “户外风雨连绵,廊下月华如水”。
尤其整个市区板块,溢价率一路高歌猛进,12月30日,2024年上海八批次土拍首日,徐汇龙华一幅住宅地块溢价40%成交,楼板价12.6万元/㎡,未来,地块内的部分产品单价要冲20万/㎡。
取消了“联动价”和“限价”的大背景,意味着2025年随着高溢价地块的项目陆续上市,必然影响了整个市区内的定价格局。而未来市区的供应地块还会增加的同时,地价土拍没有限价,售价只会不断突破。
这一环境因素之下,2025年在售的市区内新房就尤为重要,是非常明显的价格洼地。目前徐汇市场新房在售仅有徐汇滨江的“海上·清和玺”,还维持着今年的定价逻辑,有置业需要的小伙伴们,一定要早入市区,赶上今年行情的福利!
4、什么是房地产业:从事房地产开发、建设、经营、管理以及维修、装饰和服务的综合性产业。
5、什么是房地产开发:是指在依法取得土地使用权的土地上按照使用性质的要求进行基础设施、房屋建筑的活动。
8、征用土地是指:国家为了公共利益的需要,可依照法律规定对集体所有的土地实行征用。
9、什么是土地所有权:是指国家或集体经济组织对国家土地和集体土地依法享有的占有、使用、收益和处分的权能。
10、什么是土地使用权的出让:指国家以协议、招标、拍卖的方式将土地所有权在一定年限内出让给土地使用者,由使用者向国家支付土地使用权出让金的行为。
11、什么是土地使用权转让:是指土地使用者通过出售、交换、赠与和继承的方式将土地使用权再转移的行为。
12、什么是地籍、产籍:是对在房地产调查登记过程产生的各种图表、证件等登记资料,经过整理、加工、分类而形成的图、档、卡、册等资料的总称。
14、熟地是指:已完成三通一平(水、电、道路,土地平整)或七通一平,具备开发条件的土地。
16、什么是宗地图:是土地使用合同书附图及房地产登记卡附图。它反映一宗地的基本情况。包括:宗地权属界线、界址点位置、宗地内建筑位置与性质、与相邻宗地的关系等。
17、证书附图是指:房地产后面的附图,主要反映房地产情况及房地产所在宗地情况。
18、什么是物业管理:泛指一切有关房地产开发、经营、商品房销售、租赁及售后服务。
19、什么是业主委员会:是在物业管理区域内代表全体业主实施自治管理的组织。是代表
27、期房是如何介定的:房地产开发商拿到商品房预售许可证开始至取得房地产权证大产证或竣工验收合格可以直接入住使用)为止。
29、什么是现房:是指消费者在购买时具备即买即可入住的商品房,即开发商已办妥所售的商品房的大产证(或已经竣工验收合格并交付使用)的商品房。
30、什么是毛坯房:房地产商交付屋内只有门框没有门,墙面地面仅做基础处理而未做表面处理的房叫毛坯房。
33、商品房预售是指:在房地产尚未建成以前,房地产的经销商在取得受买人一定数量的定金后,将期房出售给受买人。
34、商品房现售是指:指房地产开发企业将竣工验收合格的商品房出售给买受人。
37、例出3种以上的安居房的种类:准成本房、全成本房、全成本微利房和社会微利房。
49、框架结构的意思是:以钢筋混凝土浇捣成承重梁柱,再用预制的隔墙分户的结构。
50、开间指的是:一间房屋内一面墙的定位轴线到另一面墙的定位轴线之间的实际距离。
预约来电尊享购房优惠,可预约案场内部销售人员,专业一对一热情服务,让您用专业眼光去买房。
楼盘项目全面介绍,本电话为开发商提供线上预约售楼电话,楼盘项目全面介绍(包含楼盘简介,均价,房价,现房,期房,别墅,叠墅,大平层,价格,楼盘地址,户型图,交通规划,备案价,备案名,项目配套,样板间,开盘时间,认筹时间,楼盘详情,售楼处电话,最新消息,最新详情,周边配套,一房一价,最新进展等详情咨询)楼盘详情丨价格丨更多优惠丨机不可失丨欢迎致电丨诚邀品鉴!售楼处位置丨特价房丨工抵房丨剩余房源丨户型图丨最新消息丨免责声明:将文章内容综合来源于网络、只作分享,版权归原作者所有!!如有侵权,请联系我们,我们第一时间处理如有问题欢迎来电咨询,专业一对一热情服务,让您用专业眼光去买房。如果您想了解更多楼盘详情,欢迎提前预约拨打
平台声明:该文观点仅代表作者本人,搜狐号系信息发布平台,搜狐仅提供信息存储空间服务。


